Repositorio Institucional
Repositorio Institucional
CONICET Digital
Datos de
Investigación
  • EXPLORAR
    • AUTORES
    • DISCIPLINAS
    • COMUNIDADES
    • TODO
  • Ayuda
    • Qué son y qué no son los Datos de Investigación
    • Cómo obtener un DOI/Handle
    • Cómo reutilizar y citar los Datos de Investigación
    • Preguntas frecuentes | FAQs
    • Contacto
  • Novedades
    • Noticias
    • Boletines
  • Acerca de
JavaScript is disabled for your browser. Some features of this site may not work without it.
  • METADATOS
  • CONDICIONES DE USO
  • ARCHIVOS
  • ITEMS RELACIONADOS
  • ESTADISTICAS
 
 
Datos de investigación

Monitoreo higrotérmico en Museo de Arte Sacro y Catedral Basílica de Salta (Oct-Nov 2019)

Autores: Gea Salim, CamilaIcon
Colaboradores: Flores Larsen, Silvana ElinorIcon ; Hongn, Marcos EzequielIcon ; González, Silvina MarianaIcon
Publicador: Consejo Nacional de Investigaciones Científicas y Técnicas
Fecha de depósito: 06/03/2025
Fecha de creación: 01/10/2024
Clasificación temática:
Otras Ciencias Naturales y Exactas; Otras Ingenierías y Tecnologías

Resumen

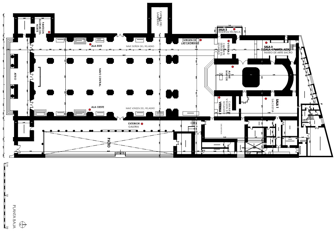
Registro de datos de temperatura y humedad relativa en el Museo de Arte Sacro y Catedral Basílica de Salta, Argentina. La recolección de datos se realizó en el marco de la tesis doctoral titulada "Rehabilitación energética de edificios históricos de Salta".

Información Técnica

Se utilizaron registradores de datos HOBO (modelos U12-12) con una precisión de ±0.35°C y una resolución de 0.03°C a 25°C para la temperatura, y una precisión de ±2.5% y una resolución de 0.03% para la humedad. Los sensores, calibrados específicamente para el rango de temperatura esperado, tenían una antigüedad de calibración menor a un año y un error de calibración inferior a ±0.5°C.

Métodos

Se monitoreó durante 15 dias consecutivos, a intervalos de 15 minutos del 29 de octubre al 13 de noviembre de 2019. Además se instaló un sensor en la galería del edificio para obtener datos de la temperatura y humedad relativa exterior, permitiendo así un análisis comparativo entre las condiciones internas y externas.
Palabras clave: MONITOREO HIGROTÉRMICO, EDIFICIO HISTORICO, CONSERVACION PREVENTIVA, EFICIENCIA ENERGÉTICA
Alcance geográfico
.

Alcance geográfico

.
Identificador del recurso
URI: http://hdl.handle.net/11336/255518
Colecciones
Datos de Investigación(INENCO)
Datos de Investigación de INST.DE INVEST.EN ENERGIA NO CONVENCIONAL
Citación
Gea Salim, Camila; (2025): Monitoreo higrotérmico en Museo de Arte Sacro y Catedral Basílica de Salta (Oct-Nov 2019). Consejo Nacional de Investigaciones Científicas y Técnicas. (dataset). http://hdl.handle.net/11336/255518
Condiciones de uso
Las buenas prácticas científicas esperan que se otorgue el crédito adecuado mediante una citación. Utilice un formato de citación y aplique estas normas de reutilización.
info:eu-repo/semantics/openAccess
Excepto donde se diga explícitamente, este item se publica bajo la siguiente descripción: Creative Commons Attribution-NonCommercial-ShareAlike 2.5 Unported (CC BY-NC-SA 2.5)
Compartir
Archivos del conjunto de datos
Archivo
Notas de uso
Tamaño
 
Catedral_Verano.csv
  Más
132.4Kb
  Descarga
Planta_Catedral.jpg
Croquis con ubicación de sensores  Más
137.4Kb
  Descarga
 
 
Descargar todo
  Descargar solo metadatos (JSON)   Descargar solo metadatos (XML)
 
Preparando la descarga
 

Ver el registro completo

Enviar por e-mail
Separar cada destinatario (hasta 5) con punto y coma.
  • Facebook
  • X Conicet Digital
  • Instagram
  • YouTube
  • Sound Cloud
  • LinkedIn

Los contenidos del CONICET están licenciados bajo Creative Commons Reconocimiento 2.5 Argentina License

https://www.conicet.gov.ar/ - CONICET

Explorar

  • Autores
  • Disciplinas
  • Comunidades
  • Todo

Ayuda

  • Qué son y qué no son los Datos de Investigación
  • Cómo obtener un DOI/Handle
  • Cómo reutilizar y citar los Datos de Investigación
  • Preguntas frecuentes | FAQs
  • Contacto

Novedades

  • Noticias
  • Boletines

Acerca de

Godoy Cruz 2290 (C1425FQB) CABA – República Argentina – Tel: +5411 4899-5400 repositorio@conicet.gov.ar
TÉRMINOS Y CONDICIONES